
宜兰分享|金湖听语-Loft三重奏
Client
Confidential
Address
China
Description
LOFT三重奏

Loft意味着什么?逐渐成为消费主力的青年群体徘徊在现实与浪漫的夹缝里,他们关注生活,追求仪式感的自洽。
不以大小博弈的Loft户型,恰巧吻合青年群体的诉求。IELYN设计针对青年群体打造三套案例,以空间的包容与深度回应糜迷都市的袭扰。
Ⅰ 小确幸

43㎡能容下的不多,在琼楼林立的城市中,小户型的设计是妥帖的安放,是不多不少的心灵栖息处,一位普通的都市女性,一间有温度的小屋......


为了更好的渲染空间氛围,整体延续森林绿作为主题色,搭配原木色地板,并在设计上加入了东南亚设计元素,以及点睛的绿植让整个空间看起来更加自在,给人脱离都市的随性感受。


高低错落的层次感,软包与大理石的材质刚柔对比回应着高脚杯的剔透,绿植与挂画装饰,浅浅勾勒当代女性的美好品味与生活趣向。


有限的空间需要容纳不同的生活场景,珊瑚色与青绿在灯光的映衬下点亮空间,使房间不显拥挤,同时巧妙地赋予空间性别属性,使它成为少女心的安放处。

▽平面信息

Ⅱ 稻香与鲸鱼
清深远城市

IELYN设计不推崇豪华奢侈,整个民宿空间从家私到布艺,均为最天然朴实的材料,舒服的手感和视觉体验营造安定的旅居环境,朴实大美,旨在遇见最适合的生活温度,心安之处便是吾乡。


在装饰中不使用金属的饰品和家具,更多的是采用原木、席和竹等,保持它们原有的色泽,不加修饰的表现出来。

压低家具重心,茶几做成低矮的样式,让家具的存在感降低。回归自然是很奢侈的生活方式,摒弃过多装饰,寻找原始的味道。用最淳朴的体验,寻找生活真谛。

▽平面信息

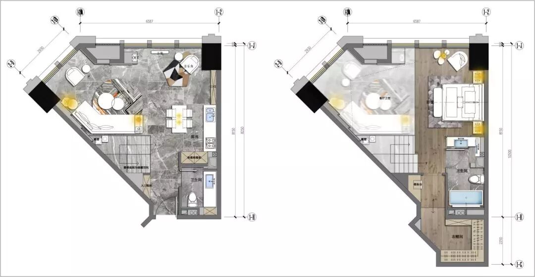
Ⅲ 爱乐之城
一屋两人,
三餐四季,
共飨五味,
与乐作伴。

一个有趣的灵魂,能够发现生活的别有意味,当两个这样的灵魂相遇,阳光、生活、兴趣融为一体,IELYN为年轻夫妻打造“爱乐之城”,收录他们的人生乐曲,让空间变作长久的陪伴,与人共鸣。

会客区拥有极佳的挑高,环形吊灯垂落,不带来压抑感,哑光木质家私与抱枕呼应。空间内线条、色彩互相交替、穿梭、重复,如同乐章小节,旋律在空间内回荡。


餐桌上圆盘叠落,烛台边上就是花艺与另两支花瓶,仿佛能看到女主人在精心的摆弄花叶、餐盘,明媚的饮食乐章悠然奏起。



围绕承重体打造电视墙,侧边作为收纳,青春的声音被收藏在一张张CD里。同时二楼打造音乐角,流行与经典位于空间的不同层面,互不搅扰。


卧室区域通过地面块毯进行空间划分,在饰品选择上,大方点落绿植摆件,搭配色调一致的棉质床品、湖色搭毯,与木质背景墙、镜面装置相结合,丰富空间层次感与设计感。


在空间的规划上,于有限间构建的宽敞浴室,点缀枝丫,再无多余,这是主人家独属的旋律,剪藏在心头的浪漫情怀。

▽平面信息

项 目 地 点:湖北 武汉市 东西湖区
项 目 面 积: 小确幸户型 50㎡
稻香与鲸鱼户型 50㎡
爱乐之城 74㎡
设 计 单 位:武汉宜兰软装设计有限公司
设 计 团 队:李菡、陈双、李艺璇、许傲霜
摄 影: 蔡唯
