
宜兰分享|兴安彰泰学府C户型,几何美学
Interior Styling, Interior Architecture, Installation• 2026• China
Client
Confidential
Address
China
Description
“上帝是一位几何学家”,两千年前柏拉图就道破了造物的奥妙,如今它被融入设计的每一角,隐藏在艺术创作甚至建筑中。

简约的风格与线条的设计兼容并蓄,面料质感凸显,金属细节点缀。纯色布艺和皮质间的对比,因细腻的滚边而格外醒目,而这流畅滚边一直延展至全新的马刺带扣,在这工艺与材质的穿插间,组成优雅的几何。

有力的线条,深邃的橙色以及细腻的布艺,IELYN为客厅注入爱马仕的优雅情调,为盛大客聚或双人茶憩增添值得品味的设计故事,被停留在这儿的他们静静听去。



将舒适和精致完美融合,深邃橙色的皮质餐椅静立、橡木餐桌上叠落水晶杯与白瓷,各种材质围绕进餐的礼仪营造出完美的平衡感,理性与温暖交织着都市家庭的轻巧律动。



家的味道从餐厅飘来,家的温暖从被窝里倾泻,自都市的冲击回归,重新感受所见、所触,设计的初衷就是让人看到最初被忽略的事物。


线条在主卧中展现全新视角,它的边界开始模糊,沿着柔和的路径继续行走在绒面的搭毯上,让人想把自己揉进抱枕里,与美梦酣睡。


次卧是来客的临时居所,更是主人家美好品质的表现,橙色、咖色沿着规律的几何线条铺就在家私之上,棉绒布艺细腻的包容着疲惫,给人带来优越的体验,蕴含着开放而贴心的体谅。




温馨的组合床具筑起了双子的酣睡场,色彩略显得稚嫩,孩子永远是家中的例外,远离成年人的取舍与精致,IELYN用童趣为孩子们打开星辰浩海。



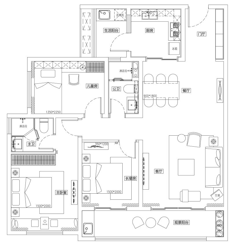
平面信息

项 目 地 点:广西 桂林市 兴安县
项 目 面 积: 98平方米
设 计 单 位:武汉宜兰装饰设计有限公司
设 计 团 队:李菡、陈双、张玉梅、段慧玲
文 案:侯香玉
摄 影: 蔡唯
完 工 时 间:2019年8月
