
武汉 • 三镇中心 | 艺术系的简约空间
Client
Confidential
Address
China
Description

、
亲和温厚的家
一处居所,承载一段岁月。
一缕时光,私藏温暖爱意。


关于家的构想被逐渐具象,
家不需要多么繁华,要充满温暖温馨气息,
时刻感受家的温馨,处处蕴藏着美好。
简约的美好更让人印象深刻,也体现设计的精髓。
本案现今流行的奶油侘寂风格中提取元素,
淡雅原木色、奶油白是本案的主要色彩氛围,
配以自然材质原木、棉麻等,
充分彰显极简美学与素雅气质,提升空间气韵,
营造与自然共生的烟火空间
01 Living room 客厅
-





通透的客厅,精心的灯光布局,松软的奶油色沙发,
软糯的视觉色系搭配柔和的家具之美,
赋予居者疗愈的力量,感受心安之旅。
02 Restaurant 客餐厅
-



现代质感的家具与居家好物加持,
以最简单纯粹的居品餐具,渗透生活的动人细碎,
呈现出理性的质感和舒适的审美体验,颜值与功能兼备。
03 Kitchen 厨房
-

厨房空间各个功能区域被合理地划分,
既保持了独立性,又确保了空间的连贯性和流动性。
04 Master bedroom 主卧
-




主卧选用柔软的床品和遮光窗帘,确保良好的睡眠环境。
同时也采用柔和的色调,营造出一个放松和安宁的氛围。
05 Multi-function room 多功能房
-



多功能房,不过度张扬,
自然气韵与优雅的质感中令空间散发冷与暖。
雅致中透露奢享,以视觉情绪带动自由舒适的氛围感,
在开阔的视野衬托下,赋予一种延伸体验感。
06 Children’s bedroom 儿童房
-




儿童房打造为一个梦幻小屋,
采用轻薄的窗帘,以便阳光充足照进房间;
同时统一选用柔和的粉粉的色调装饰整个房间,创造出一个温馨而舒适的房间。

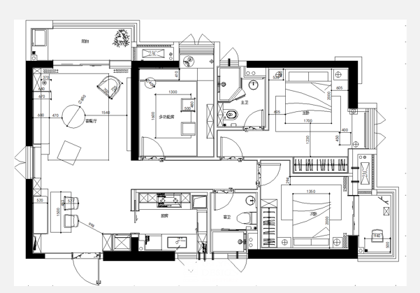
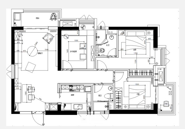
平面图
、
如同百宝箱的家充满艺术氛围;
声音和影像,
给所有“空隙”填满了魅力

经由意识的表达,
关于家的构想被逐渐具象。
The concept of home is gradually
concretized through the expression of consciousness。
01 Living room 客厅
-



与其乱花迷人眼,不如大道至简单。
用色彩的碰撞彰显了空间设计,
极简的软装设计,使角落细节彰显于空间各个角落。
02 Restaurant 餐厅
-



厨房采用半隔断设计,和餐厅保持互动尺度,
嵌入式的酒柜设计,为空间增添了独特的韵味与层次感。
餐厅的设计简约而富有层次,
美食传递的同时,也传递一份亲情和惬意。
03 Master bedroom 主卧
-




主卧,减去形式上的浮夸,
看似“空”,实则最为丰盈,
将设计与生活回归到最本质——舒适,
营造自然清爽的简洁空间,赋予更高的睡眠质量。
04 Second bedroom 次卧
-


平静的色彩搭配,拥有一个静谧的高质量睡眠。
同时做了收纳区及梳妆台,
从梳洗到换装都可以最简单便捷的完成。

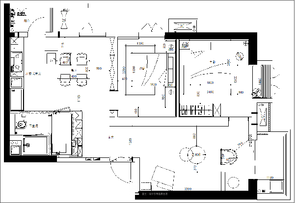
平面图
项目名称:湖北武汉华融·三镇中心
项目面积:79㎡/ 99㎡

李菡 创始人
宜兰设计自2011年成立至今,擅长并长期从事地产类营销中心、样板间、办公、公共区域、酒店和高级私人住宅的软装设计及实施,并于2015年和2016年先后成立宜室宜兰与深圳宜兰室内设计公司,扩展陈设艺术品研究与全案设计板块。
我司合作的供应商皆为国内外优质的专业供应商,并针对项目进行严格质量管理,不定期组织设计团队和采购团队进行国内外考察活动,足迹遍布亚洲和欧洲等多个城市,公司以深圳和武汉双总部模式,已完成了多个知名的地产公司、酒店企业、文旅公司的多个知名项目。公司业务辐射全国,本着精英团队打造精品作品的理念,严格把控作品品质,确保每一个项目精雕细琢,把每一个作品打造成为该领域的样板作品,为客户带来了成功的商业价值,与客户共同进步和发展.
2023第十届法国INNODESIGN PRIZE全球创新设计大赛
空间设计类(专业组)铜奖
2023年 AIIDA美国国际创新设计大奖
国际影响力创新设计机构TOP50
2023年 第五届日本IDPA先锋设计大奖
<江苏桃李春风售楼部>设计先锋金奖
2023年 IAI全球设计大奖(室内奖)IAI+I
<武汉天纵云邸售楼部> 优秀奖
2023年 IAI全球设计大奖(室内奖)IAI+I
<武汉城建悦享湖景住宅> 优秀奖
2021年 ADMD 安德马丁发现 中国好设计
年度推荐设计师
2021年 China Top Design Brand Annua
中国设计品牌榜
年度青年榜样设计师
2020年 第十届国际空间设计大奖——IDEA-TOPS艾特奖
最佳酒店设计 入围奖
2019年 APDC亚太奖 GroupHoronable Award
<天赐金龙城营销中心>优秀奖
2019年 APDC亚太奖 Best Hotel Design Award
<和居酒店> 最��酒店设计奖
2018年 金鹰设计大赛 Best design organization
年度最佳设计机构
蓝城桃李春风ㅣ宋式美学生活画卷
天纵城| 几何建筑语言的修辞学
信达第五园| 印象利川 无界秘境
#经典样本间别墅项目案例
恩施金麟樾府-江山印ㅣ贵族般品鉴生活 182㎡
桂林博翠漓江| 勃艮第红的告白
#经典商业空间项目案例

武商光之堡ㅣ汉堡形象店
西山泉ㅣ汽车房车露营基地


宜兰设计
IELYN DESIGN
版权声明
本文版权归宜兰设计所有,未经授权,请勿转载。
电话TEL;027-86960001







