
宜兰分享|阳朔假日-美豪酒店
Client
Confidential
Address
China
Description

如果不是一个突然的邀请,宜兰团队不会知道,原来桂林拥有如此美丽的地方:阳朔。阳朔位于广西的东北部,桂林市南面,青山起伏,玉带缠绕,我们的项目位于阳朔县荆凤路石马圆盘以南,是旅居最好的位置之一。
彰泰实业为热爱旅行的人们构建乌布小镇,项目是以五座酒店为核心的旅游服务集群。五座酒店的设计是极具挑战性的任务,而热衷品质生活的宜兰团队一举承接了这个项目。

设计理念:项目阐述“慢生活”理念,其中美豪与美豪丽致是一蒂并生的双子酒店,拥有着共同的集散模块:接待大堂。两家酒店都具备独立服务体系,设计师将二者的关系定义为水与冰,和谐与矛盾共处,迥异的风格在其中绽放,又在大堂处融合统一。

△一层平面图
在功能分区上,一层是公共空间:有接待,茶吧及等候区,设计师整合背景墙、地毯与家私的色调,在同一旋律下转折变化。接待区由大理石与灯光切割出流畅线条,块毯划分,强调空间的分割使用。

△大堂


△大堂一角
茶吧采用原木材质舒缓空间情绪,简易的圆墩与麻绳巧妙的交织出温和质感,黑白细釉托举一枝绿芽,点缀一抹绵长禅意。

△茶吧区


△茶吧区一角
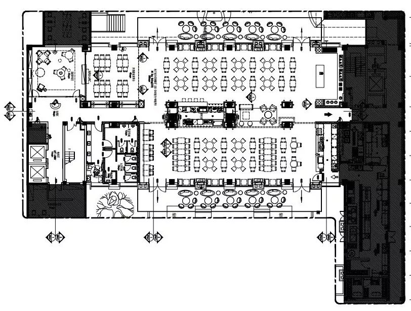
△负一层平面
地下一层是用餐区及儿童区,作为人群的交互模块,餐厅家私使用澄净的水蓝色软包,铁艺结构呼应吊顶工业风格,一眼望去和谐明亮,儿童区原木家私搭配森系地毯活跃氛围,画板图书趣味满满。

△走道

△用餐区

△儿童区
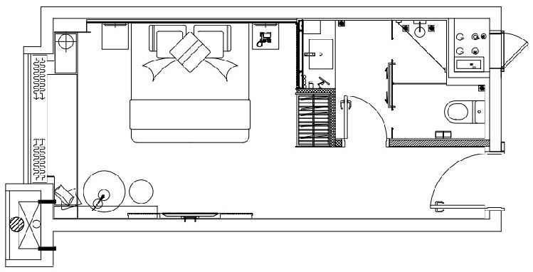
美豪丽致酒店二至八层是客房区,设有标准间、大床房、套间、豪华套间及复式,每一个房型对应不同的人群,本文选择大床房及套间作案例分享。

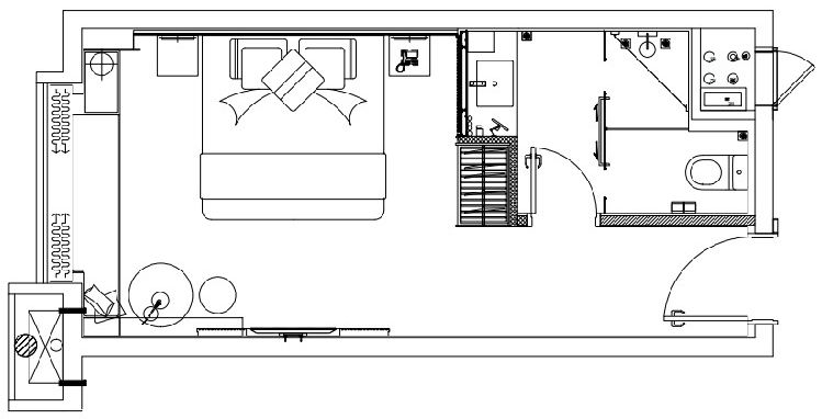
△美豪丽致大床房平面
在空间处理上,设计偏向于打造东南亚风格,室内以纯色墙身和木质家具为基调,嵌入精美布艺点缀异域风情,细腻柔和的材质与色彩,注重细节与使用的便利,而非强调设计的抢眼与特殊,让人既不会感受到空间的压迫,完全地放松与融合,用时又与文化相玩味。



△美豪丽致大床房



△客房一角

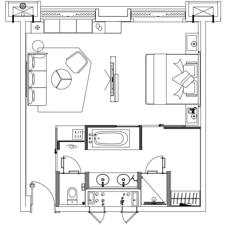
△美豪丽致套房平面
进入套间,客厅顺应客人进入室内那一瞬的放松心理,将空间与阳朔小镇恬静、朴素的印象联系起来,绿植搭配低饱和纯色家私勾兑温和的空间氛围。
且设计师为空间未来的使用场景提供了多种预案,给疲惫的肉体准备可临时俯卧的长沙发,给好奇的心铺设飘窗软垫,小憩观景,自在随心。


△美豪丽致套房客厅


△客厅一角
低饱和度的幽微与鲜艳花卉碰撞,别致的灯笼式金属吊灯垂在竹编小柜上,吊灯与家具的线条结构相互呼应,营造出与众不同的空间魅力,其中有温暖的热情、个性的简约,为游人准备安逸的洗礼,开始酝酿醒来的期待。

△美豪丽致套房卧室


△卧室一角
美豪酒店二到八层同样是客房区域,设有标准间、大床房、套间及复式,两座酒店同样以东南亚风情洋溢着空间,但如果说美豪丽致是自然的雨林 ,那么美豪则是热带的季风。

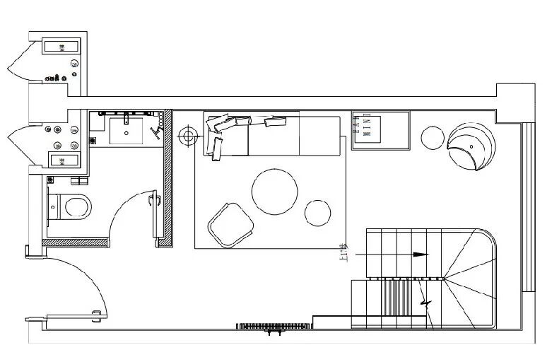
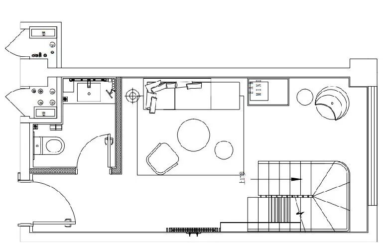
△美豪复式一层平面
在统一色彩的基调上提升亮度,并在不同空间稍微作色调的调整,不刻意强调“现代”和“时尚”的意味,而将东南亚式空间装饰材料、手法所带出的情态元素在形态表现上作蜻蜓点水似的适度表达。


△美豪复式一层客厅
高饱和的色彩在一层入户后扑面而来,橙与黄的碰撞带有一丝热烈的粗犷,东南亚艺术源于对自然的崇拜与运用,藤制吊椅在比例上调节空间和谐韵律。
焦距拉近,千格纹抱枕落下流苏,榉木圆几触摸黯彩瓷盘的肌理,品质不惧镜头的注视。




△客厅一角

△美豪复式二层平面
沿着螺旋楼梯直上,二楼的画面随着台阶一级级拾入眼帘,森色床旗延续空间色彩风格,天窗斜洒阳光,仿佛树屋小筑,形成梦里梦外,似与不似的空间感受。


△复式二层卧室

△遇见阳朔
阳朔乌布,不只是个大点的酒店,更是一个重新认识人与“远方”的场所。
未完待续,敬请期待!

项 目 地 点: 广西 桂林市 阳朔县
项 目 面 积: 49803平方米
设 计 单 位: 武汉宜兰软装设计有限公司
设 计 团 队: 李菡、陈双、张玉梅、李艺璇、
王骞、段慧玲、万紫月、许傲霜
文 案: 侯香玉
后 期 摄 影: 蔡唯
设 计 时 间: 2018年9月
完 工 时 间: 2019年3月
