
澳门山庄ㅣ现代风 山湖城中墅
Client
Confidential
Address
China
Description
寻觅一处私密山湖城中墅
把一切复杂变为纯粹,远离喧嚣
热爱生活
诠释生活
享受生活

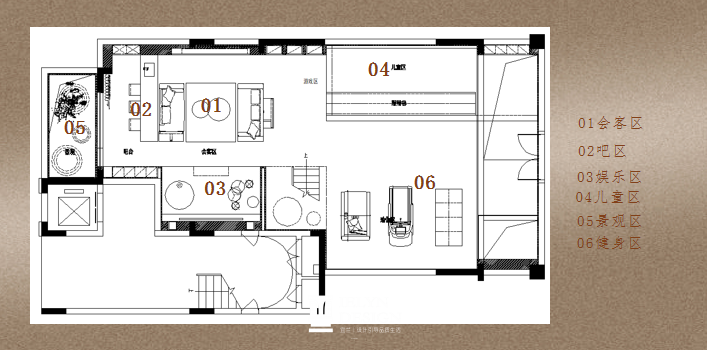
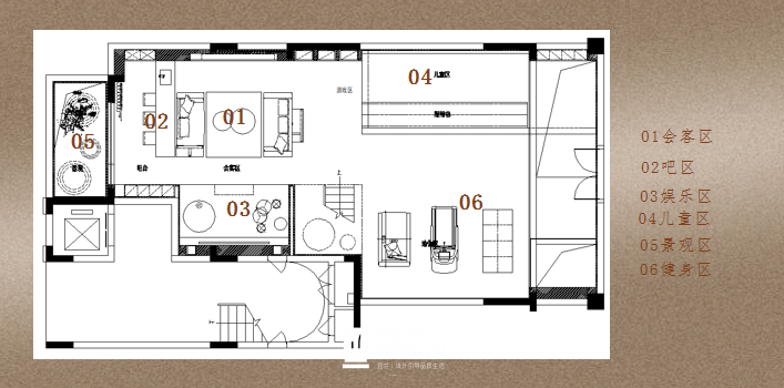
一层
“三代同堂”
/生活中最幸福的,莫过于那些在忙碌的生活能够感受到一抹诗意的人,

△一层平面布置





整体空间纹理,色彩简洁,形式简约,将优雅时尚的质感结合现代轻奢的高品质,展示精致高端的生活态度,体现生活的情调和舒适。







餐厅空间的设计追求简洁而雅致,将餐厅与厨房放置在一起,去除多余的装饰和繁琐的元素,保留最基本的、最纯粹的部分,不被繁杂的细节所拘束。


老人房,巧妙地把暖和色彩与其装饰设计结合,注入一份温暖与细腻的质感,展现出一种纯粹之美。
二层
“私享空间”

△二层平面图


房间侧面削弱压迫感,引入漫射光,正好借墙体屏蔽增加空间安定感,再以侧向高窗窗景塑造光影,丰富层次。




儿童男孩房,运用男孩子喜欢的主题“毛怪与大眼仔”,激发其对世界的想象。空间利率高,集休闲,学习,收纳各个功能区,呈现出无尽的俏皮感,活力感。

桌椅书柜,内敛含蓄的空间传达着一种对安静生活的向往。在这里,人们可以远离尘嚣和喧闹,静心思考、阅读、沉淀。这里是一个避世的港湾,让人们重新找回内心的平静与宁静,追求简约而高尚的地方。
负一层
“含蓄之意”

△负一层平面图

儿童区,其中有绘画区,亲子书吧,手工区等,以细腻的细节刻画丰富的空间氛围,温暖包裹感十足的座椅,用柔软的色调,营造孩子们的专属天地。
负二层
“生命韵律”

△负二层平面图


景观区,墙边的绿色植物给空间增添了活力。植物的存在让人感受到大自然的力量和生命的韵律,将室内与室外连接起来,打破了封闭感,给人带来一种轻松、自然的氛围。

儿童娱乐玩耍区,将空间合理划分,把对孩子的爱,在生活的细节末节中给予支持。滑滑梯下面也做了海洋球堆,让孩子可以尽情玩耍。
PROJECT INTRODUCTION
━
项目名称:澳门山庄叠墅样板间
项目地址:湖北省武汉市江夏区江夏大道8号
项目单位:顺联房地产(武汉)开发有限公司
项目设计面积:330m²
软装设计:宜兰设计团队
空间摄影:梵镜建筑空间摄影
项目推文:宜兰设计品牌部

李菡 创始人
宜兰设计自2011年成立至今,擅长并长期从事地产类营销中心、样板间、办公、公共区域、酒店和高级私人住宅的软装设计及实施,并于2015年和2016年先后成立宜室宜兰与深圳宜兰室内设计公司,扩展陈设艺术品研究与全案设计板块。
我司合作的供应商皆为国内外优质的专业供应商,并针对项目进行严格质量管理,不定期组织设计团队和采购团队进行国内外考察活动,足迹遍布亚洲和欧洲等多个城市,公司以深圳和武汉双总部模式,已完成了多个知名的地产公司、酒店企业、文旅公司的多个知名项目。公司业务辐射全国,本着精英团队打造精品作品的理念,严格把控作品品质,确保每一个项目精雕细琢,把每一个作品打造成为该领域的样板作品,为客户带来了成功的商业价值,与客户共同进步和发展.
2023第十届INNODESIGN PRIZE铜奖
空间设计类专业组
2023年 AIIDA美国国际创新设计大奖
国际影响力创新设计机构TOP50
2023年 第五届日本IDPA先锋设计大奖
<江苏桃李春风售楼部>设计先锋金奖
2023年 IAI全球设计大奖(室内奖)IAI+I
<武汉天纵云邸售楼部> 优秀奖
2023年 IAI全球设计大奖(室内奖)IAI+I
<武汉城建悦享湖景住宅> 优秀奖
2021年 ADMD 安德马丁发现 中国好设计
年度推荐设计师
2021年 China Top Design Brand Annua
中国设计品牌榜
年度青年榜样设计师
2020年 第十届国际空间设计大奖——IDEA-TOPS艾特奖
最佳酒店设计 入围奖
2019年 APDC亚太奖 GroupHoronable Award
<天赐金龙城营销中心>优秀奖
2019年 APDC亚太奖 Best Hotel Design Award
<和居酒店> 最佳酒店设计奖
2018年 金鹰设计大赛 Best design organization
年度最佳设计机构
#经典案例-Classic Case
















宜兰设计
IELYN DESIGN
版权声明
本文版权归宜兰设计所有,未经授权,请勿转载。
电话TEL;027-86960001