
印象利川•云溪谷
Client
Confidential
Address
China
Description

印象利川•云溪谷




无界秘境
UNBOUNDED
水中庭院 景境交融
水中见月 写境东方
江南印象 名仕大家
O1
尚礼宫


(门厅)
The white clouds are interlaced with the evolution of the rivers and rivers, and the delicate borders are scattered with clusters of light spots, as if the koi in the sun is shaking the water pattern with its golden back.
白色的云片与河流河川的演变片片交错,勾勒出纤柔的边界线散落着一簇簇光点,仿佛是日光下的锦鲤用金色的背脊拨动水纹.
O2
音传殿



(沙盘区)
礼仪之尊演化为空间形式。经典的中轴布局从营销中心贯穿于会所,以大体量的序列关系强化进入者内心的仪式感。
O3
厢书阁



(洽谈区)
接待台带来了纵向的平衡和规整,意境静谧而辽远。在整体空间上,贯穿整个空间一气呵成。将建筑感和艺术性的语言,设计逻辑流畅、简洁,呈现纯粹而有震撼力的观感。△接
O4
深洽谈区


(深洽谈区)
空间整体以现在东方为主层次,印象是在延续文化,没有过多的繁杂装饰,视觉呈现出简洁舒适的体验尤其讲究装饰品。在细节处凸现质感,搭配软硬饰品,为空间的过渡,舒适的空间。
O5
论轩厅


(水吧区)
水吧区一以贯之的延续了整个空间设计风格,一目了然的造型,没有过多非必要的元素,整个空间也简洁具有亲和力。
O6
云墨居
(VIP室)
现代空间元素的简洁利落在VIP室也得以延续,通过色块的叠置,布置柔软沙发,葱郁绿植,呈现出宁静与舒适的一角。实现空间美学元素多样化渗透。 IP
O7
玉乐楼

(儿童活动区)
创造一个明快的色彩区,为孩子们打造一片开心小天地,在空间中加入彩虹波波池,通过空间可见可爱童真,同时也保证了玩乐的安全性。

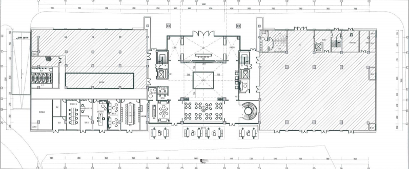
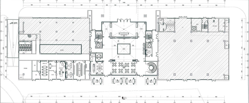
平面图
▽

项目信息
项目名称 | 天纵云溪谷售楼部
项目地址 | 湖北恩施
硬装设计 | 上海飞视装饰设计有限公司
软装设计 | 武汉宜兰软装设计有限公司
项目单位 | 恒泰天纵
#关于设计公司-Aboout Company

李菡 创始人
宜兰设计自2011年成立至今,擅长并长期从事地产类公共空间,办公,酒店及高级私人住宅室内设计及实施,并于2015年与2016年先后成立宜室宜兰与深圳宜兰室内设计,扩充了陈设艺术品研究与全案设计全案设计板块。
我司合作商皆为国内外及珠三角区优秀供应商,并针对项目进行质量管理,不定期组织同事进行国内外考察活动,足迹遍布一二线城市。所完成项目以公司本部辐射全国,本着精英团队理念,本司严格控制运营规模及项目数量,确保每个项目由设计总监亲自操刀,精心打造的成功案例为客户带来了巨大的商业价值。
经典案例|售楼部样板间
国铁印江澜丨江蜻蜓的管弦悦
时间的栖息伸展品质的艺术丨千禧城售楼部
悦见更好的生活丨武汉城建悦享湖璟
经典案例|住宅中心
山水雅集,傍山栖居丨桂林伴山雅集叠墅
湖北交投天河华府丨无限折叠中的空间多米乐骨牌
经典案例|商业空间
融创地产丨“电竞样板间”PK“网红超级直播间”
在软装中绽放自然的生机丨融创医美C户型
光之堡丨视觉氛围首推BUFF@LIGHT’S BURGER
经典案例|酒店民宿
宜兰分享|阳朔假日-美豪酒店
宜兰分享|和居酒店
IELYNDESIGN
以上作品为宜兰设计创作,未经授权,请勿转载。










