
宜兰设计 | 52㎡、40㎡、26㎡,小尺度LOFT的无限可能!
Client
Confidential
Address
China
Description


走遍天涯觅不到自己所需要东西的人,回到家里就发现它了。
——莫尔

我们很难在充斥着浮躁和矛盾的都市里全然洒脱。“家”,承载归属感与安全感,是人类释放天性、疗愈灵魂的不二场所。在这里,无拘无束、纵情生活才是常态。
近年来,随着房价的不断上扬,以及购房市场消费主力人群及需求的转移,兼顾可塑性、私密性以及价格优势的LOFT公寓及小户型产品,重新吸引了年轻人的目光。但同时,如何最大化挖掘小户型的可能性、满足不同年轻群体的生活及审美习惯,也成为了设计师需要面对的一项挑战。
本案择址南宁市彰泰·智谷,赋予定义为“STAY HAPPY STAY YOUNG ”。宜兰设计以52㎡、40㎡、26㎡三套小户型LOFT公寓样板间为例,分别为5个不同年轻群体量身打造LOFT之“家”,以有限空间创造无限可能,诠释一种全新的都市生活方式。





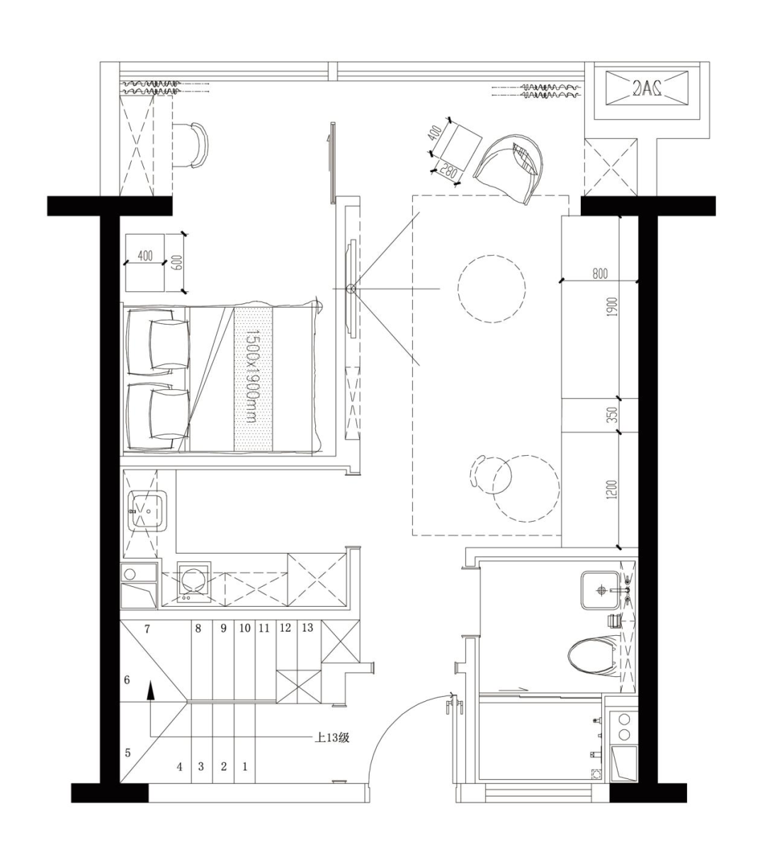
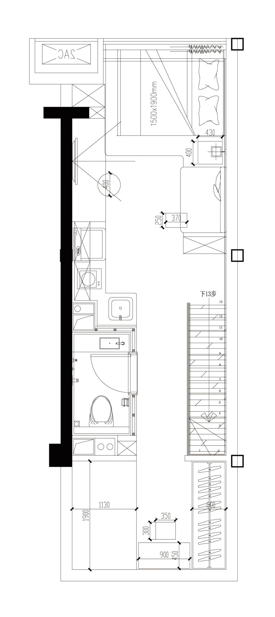
户型平面图(左为一层,右为二层)
该户型上下两层自成独立的套间,为居者提供高阔而敞开视野的同时,创造出一种“属于自己”的体验感。在这样的空间里,人性被充分尊重。
Life and dream
生活与梦想
LOFT一层的男主人是一位退役电竞选手,他热爱生活,热爱旅游,充满激情与热血,对意式风格有种独特的爱。宜兰设计以疏阔交互的空间体验、清新简约的搭配气质,将舒适生活与热血梦想完美结合。

黑灰白奠定整居主色调,低饱和度蓝、绿、橙点缀其间,搭配意式简约软装陈设,形成轻松舒适的空间氛围。金属、镜面、灯光的协奏,烘托出都市轻奢生活的品质感。


多功能沙发兼顾美观性与实用性。客厅部分为沙发床,窝在上面看剧或打游戏,一个人可以舒适悠闲的度过一整天;餐厅部分为储物沙发,分割处的边几同时是储物柜,共同分担居室的收纳压力。


卧室与客厅共享阳台优越的视野与采光。木棕色系家居陈设的置入,为简洁流畅的空间带来温暖感。设计师在书桌上方设计了独立的墙柜,用以典藏男主人的游戏手办,以及热血青春。

在这个隐匿舒适的空间里,将生活与梦想缓缓倾注,一个个性分明、美好的家居轮廓由此勾勒。

Sweet and beautiful life
我们美好又甜蜜的生活
LOFT二层为有趣又美好的一家三口设计:稳重成功、喜爱摄影的爸爸,热爱美食与生活的妈妈,以及活泼可爱的儿子。家人之间不可分割的情感,让家充满温暖与希望,也让生活变得甜蜜美好。

客餐厅延续一层的简约风格。明朗的几何线条在方圆之间自如游走,简约大气的餐桌与茶几,以圆弧造型形成微妙的呼应。低饱和度的绿色背景墙,为空间增添了几分清新感。


折叠餐桌在非餐期可以提供更多的利用空间;储物沙发均分为两部分,让客餐厅区域看起来更加完整、有秩序感;搭配具有储物功能的茶几,进一步增加空间的功能性。


在一众中性色调中,不同色度的金属、玻璃、大理石、布艺以及花艺摆件铺展在细枝末节中,既丰富了空间视觉,又提升了整居的品质感和高级感。

金棕色于客餐区是细部的点缀,于卧室则是主要的装饰色彩。无论是灵动光圈的灯饰,充满质感的皮质单椅,抑或曲形的艺术置物架,都是品质与个性的表达。柔软的床品,无声注入优雅温润气息。

半墙之外,是与休憩区域相对的工作阳台。简约、精致、富有艺术气息,收纳着男主人对摄影的热爱,以及对家居品质感的极致追求。


儿童房豆沙绿半墙与客厅背景墙遥相呼应,视觉上跳跃又不刺眼的金棕色大面积点缀,调动了沉稳的空间氛围,更显童趣。不对称床头灯和造型前卫的三折屏风,以独特美感承载了居室的艺术塑造。






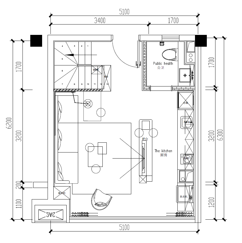
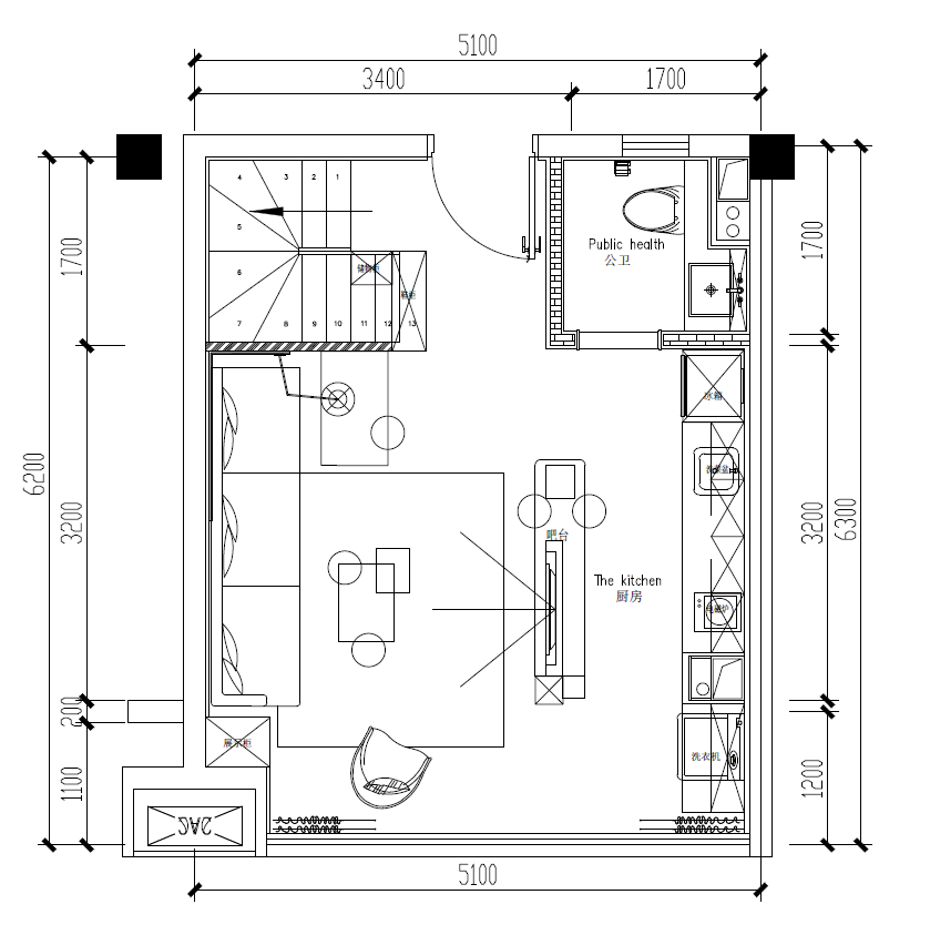
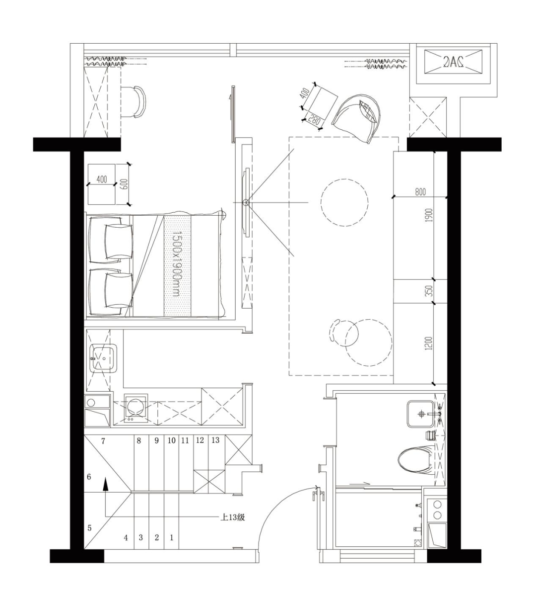
户型平面图
家宅在人的一生中,扮演着不可或缺的角色。于表面,它是身体的庇护所;于内心,我们追求的是它带来的归属感。它深沉或者灿烂,都感染着居住者的心情。
Liebesticket nach Hause
现代轻奢的幸福
该项目为一户二代新家庭设计,女主人是自由职业者,外表时尚,热爱古典音乐;男主人是私企高管,闲暇时喜欢看文学类书籍;小主人5岁,正是活泼好动的年纪。父母偶尔会来居住,共享一家人在一起的时光。


一层为公共的客餐厅区域。设计师依据空间构造和使用者偏好,采用木色和白色作为空间基底,渲染出典雅温馨的氛围;温润木质与金属、大理石、墙面灯带相结合,交织出现代、艺术的轻奢场景。

不同色度的暖黄跳跃点染,为居室增添了轻快、治愈的气质;半亚光金属与木线板组合的储物柜别有美感,置入一系列装饰摆件后,空间更具艺术魅力。

金属质感与艺术风情蔓延至就餐区,可收式餐桌有助于更为合理的分配空间,扩大活动范围。一室三四人,三餐四季,共飨生活五味。食得人间烟火,亦识得这人间清新意趣。


开放式厨房占据了客餐区近一半的空间,昭示居室主人对家庭餐食的重视。定制的实木橱柜回应整居温润气质,大理石台面彰显品质感,线条平整的中岛、吊柜维系干净整齐的视野,同时提供充足的储物空间。

艺术气息游走于居室的每一个角落,润物无声。

生活并非为了取悦这个世界,而是用自己的生活方式来取悦自己。一栋房子,不仅是家,更是生活的玩乐窝。

得益于LOFT户型上下楼层的自然分隔,二层空间的私密性得到了充分保护。

主卧享有私人区域最大的空间尺度,以及最优越的景观视野。整体设计风格与客餐厅保持一致,优雅轻奢不失艺术氛围;丰富而细腻的灯光,与室外光影交织,为整室镀上一层柔焦滤镜,质感更显高级。


主卧与衣帽间以隔断墙分割,营造极致空间秩序感。

长辈房在延续基础配色之上,调入了温和的浅灰色,整体氛围更沉稳安静,典雅自然。






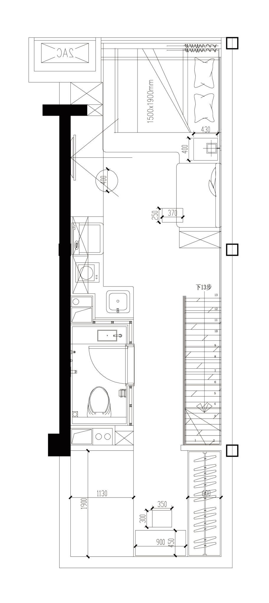
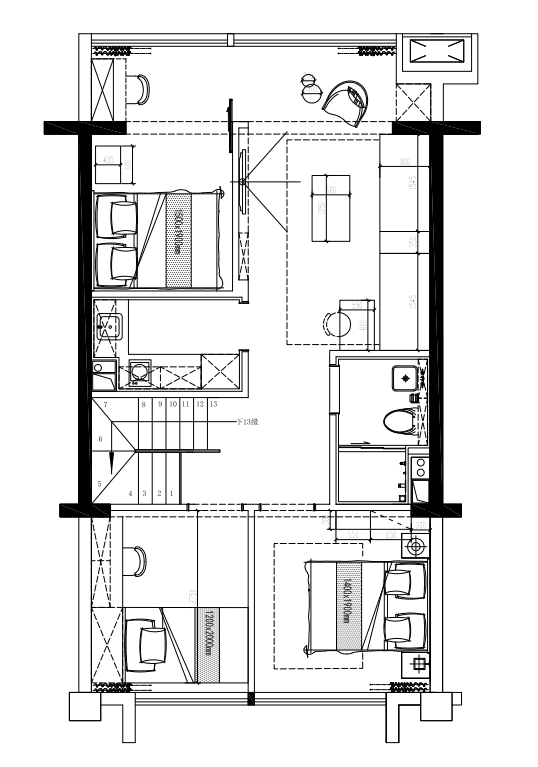
户型平面图(左为一层,右为二层)
理想生活应该是什么模样?拥有一处属于自己的温馨小窝,一个属于自己的丰富空间。“寓” 见美好时光,“寓”见自在生活,一间极小LOFT公寓,也足够装下青春、梦想和自由。
Plentiful life
今日测评YSL圣诞新品
一层的女主人是一位25岁的美妆时尚博主,她对空间的要求是时尚与潮流,希望在日常拍摄之外,拥有对美妆好物的整理、收纳以及展示,让轻松时尚的家时刻光彩照人。
设计师以当下网红风尚为蓝本,精心配比极简白、樱粉与木色,现代简约与ins风相结合,打造出了一个雅致前卫的,符合美妆博主生活、工作、休闲的无界限、自由的复合空间。


樱粉色墙纸作为整居的背景,视觉上延长了空间的纵深感。实木地板的局部挑高,令空间划分更加明晰,一线灯带烘托出时尚氛围。粉色单品作为局部点缀,与柔软床品、金属框线相映衬,刚柔并济,雅致轻奢。

化妆台同时是女主人的工作台,收纳板能够最大程度满足其在不同时间的收纳需求。侧边的展示柜运用灯带照明,借助恰到好处的暖色光强调展品质感,以便主人更好地展示喜欢的美妆好物。


客厅、卧室、卫生间、餐厨区、化妆区、衣帽区......所有功能区域在有限的空间内依次铺陈,功能叠加,简约精致,完美诠释時尚博主的年轻热情与潮流态度。

Plentiful life
天马行空的创作天堂
LOFT二层的主人公是一位28岁的文学创作者,她的空间要求是理性与温暖,以及一个具有包容性、能够独立思考的个人空间。


与一层相似的空间布局,对软装与配色进行了简化调整,整居的氛围便截然不同。木与白的配色格外温润,同时使得空间整体性更强;风格上不做修饰、陈设上注重细节,将居者的理性与情怀尽情渲染。


散落在居室之中的灯饰、摆件、陈设以及书籍,潜藏着女主人高雅的艺术审美与文学素养。

多功能室兼具储物与休闲功能,木色渲染下更添几分清净。在这里倚榻而坐,抽一支细烟草,泡杯橙花热茶,发一会呆,进入更深层次的创作境界。


亚里士多德曾说,“人们来到城市,是为了生活,居住在城市,是为了生活得更好。”都说年轻无极限,但再漂泊的心也渴望落脚的时刻。愿你人生的每一个阶段,都能拥有一方小天地,拥有理想的生活。

项目名称丨Project name:彰泰·智谷
项目地址 | Project address:南宁
项目类型丨Project type:样板间
设计团队丨Design team:宜兰设计


宜兰设计自2011年成立至今,擅长并长期从事地产、办公、酒店、高级私人住宅、室内设计及艺术陈设,总部(深圳宜兰室内设计有限公司)与武汉分部并举辐射全国。
宜兰设计供应商皆为深圳资深厂家,长期驻厂进行质量管理,保证品质,并不定期组织出外采盘活动,足迹遍布一二线城市。本着精英团队的理念,宜兰设计严格控制运营规模及项目数量,确保每一个项目由李菡女士亲自操刀,精心打造,数目可观的成功案例为客户带来了巨大的商业价值。
1
END
1
